© 2025 Criado por Instadecode
PROJETO LEGAL- Residencial Acompanhamento Técnico Integral- NOVA LIMA-MG
📍 Localização: Nova Lima – MG
📅 Data de Início: Abril/2021
🏁 Conclusão: Julho/2025
📐 Área Total do Terreno: 843,00 m²
🏡 Área Construída: 266,86 m²
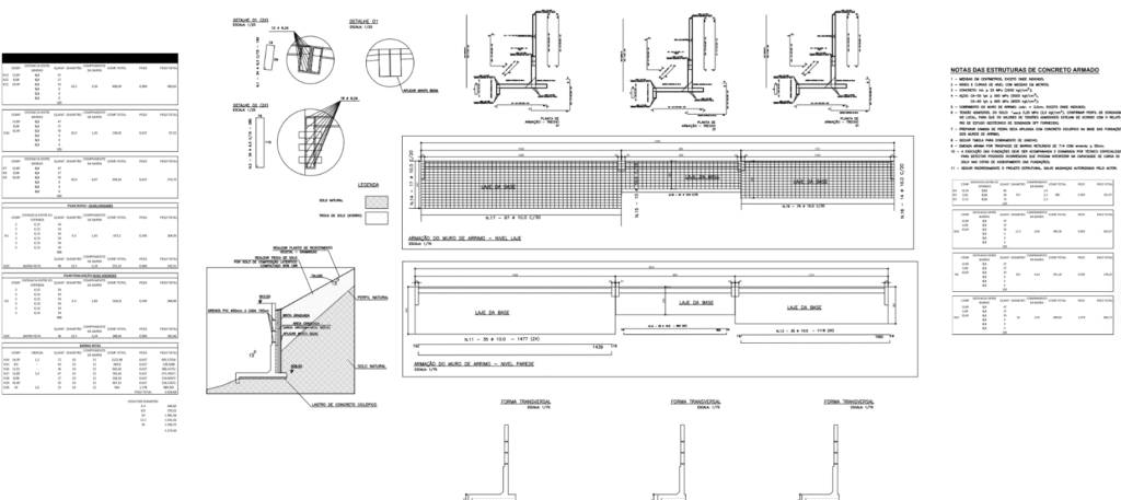
🧱 Comprimento Total do Muro de Contenção: Aproximadamente 30 metros, com 5 metros de altura
Escopo do Projeto
Inicialmente contratada para desenvolver apenas o projeto arquitetônico para aprovação junto à prefeitura, minha atuação técnica se estendeu ao longo de quatro anos, abrangendo:
- 📐 Elaboração do projeto arquitetônico aprovado pela Prefeitura de Nova Lima
- 🔁 Reaprovação do projeto após identificação de não conformidades na execução da obra
- 🧱 Desenvolvimento do projeto estrutural e acompanhamento da execução do muro de contenção em divisa, com cerca de 30 metros de extensão e 5 metros de altura, garantindo segurança ao terreno e aos imóveis vizinhos
- 🛠️ Consultoria técnica contínua durante toda a obra, com visitas em campo e orientações para correções
- 📋 Revisão de projetos complementares e compatibilização de soluções técnicas
- 💰 Elaboração do orçamento detalhado da obra, com estimativas por etapa e apoio na tomada de decisão da cliente


















Desafios Enfrentados
- Terreno com declive acentuado, exigindo soluções estruturais personalizadas
- Execução com não conformidades por parte da construtora, demandando correções e nova tramitação de aprovação
- Necessidade de contenção de talude, exigindo projeto técnico robusto e reavaliação da estabilidade geral

Diferenciais Técnicos
✅ Conformidade garantida com o Código de Obras de Nova Lima
✅ Atuação técnica estratégica para redução de riscos estruturais, financeiros e legais
✅ Defesa dos interesses da cliente com foco em segurança, conforto e regularização patrimonial
✅ Apoio orçamentário técnico, otimizando recursos e orientando a execução
Resultados Obtidos
✔ Projeto final executado conforme as exigências legais e urbanísticas
✔ Estabilidade estrutural assegurada com o muro de contenção projetado e executado
✔ Imóvel apto à obtenção de Habite-se, com toda a documentação técnica e orçamentária regularizada